No.000748-1030 福島市瀬上町
| 住所 | 福島市瀬上町 | 賃料 | 78,000円 |
|---|---|---|---|
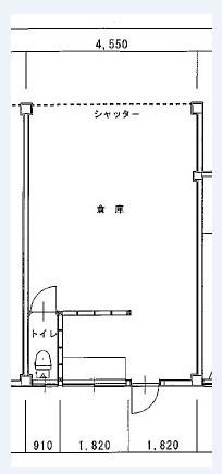
| 部屋番号 | 1F | 種類 | 店舗 |
| 礼金 | 1ヶ月 | 敷金/保証金 | 3ヶ月 |
| 共益費 | 込み | 損害保険 | 保険加入必要 |
| 駐車料 | 1台込み | ||
| 使用面積 | 33.12㎡ / 10.02坪 | ||
| 詳細情報 | |||
|---|---|---|---|
| 入居日 | 即入居可 | 種別 | 店舗 |
| 構造 | 軽量鉄骨造 | 築年数 | 平成2年 10月 |
| 設備 | ガス:プロパン 水道:公営 排水:都市下水 トイレ:水洗 | ||
| 交通機関 | バス / 「瀬上本町」停留所 まで徒歩 5 分 | ||
| 取引態様 | 仲介 | ||
| 整理番号 | |||
| 備考 | ☆適格請求書発行事業者:登録なし
☆業種相談(基本事務所) ☆駐車場2台目以降は別途敷地外(3台)空き確認 ☆保証会社要加入:賃料合計100%(初回)/賃料合計10%(年) ☆定期借家契約(3年)*エアコン1台完備 ☆決済サービス料(家賃引き落とし手数料330円/月) *図面と現状に相違がある場合、現状優先 *法定手数料【負担区分】貸主0%:借主100% |
||
※仲介手数料は法定手数料となります。詳しい内容はお問い合わせ下さい。

他の写真
