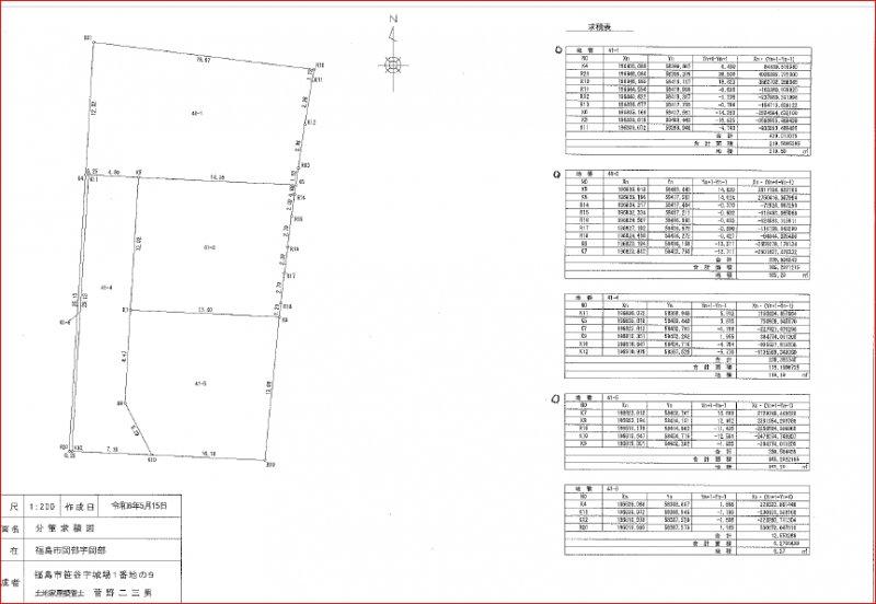
No.006371 福島市岡部字岡部41-1
他の写真