No.002153-12869 伊達郡桑折町沢
住所 | 伊達郡桑折町沢 | 賃料 | 30,000円 |
---|---|---|---|
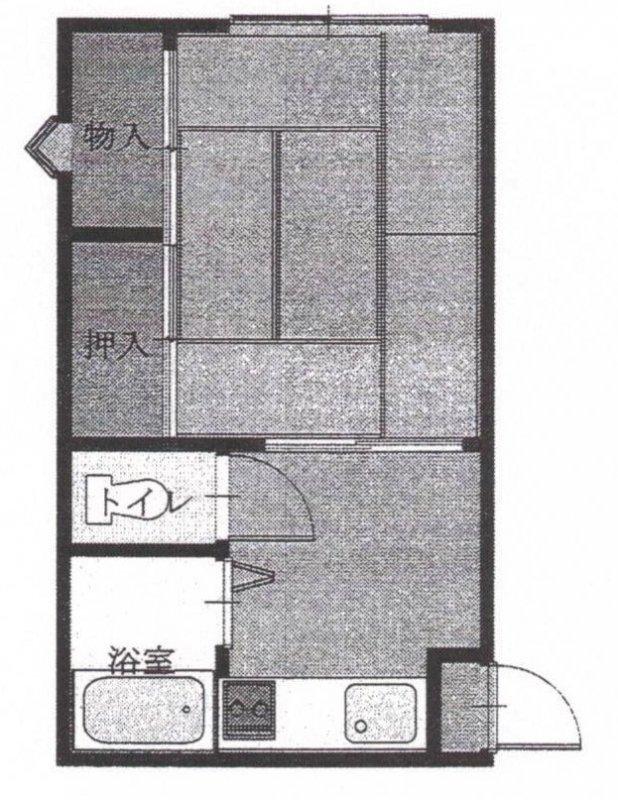
部屋番号 | 206 | 間取り | 1K |
礼金 | 30000 | 敷金 | 60000 |
共益費 | 込み | 駐車料 | 1台3000円 |
詳細情報 | |||
---|---|---|---|
入居日 | 相談 | 種別 | アパート |
構造 | 木造 | 築年数 | 昭和61年 |
損害保険 | 保険加入必要 | ペット | ペット不可 |
設備 | ガス:プロパン 水道:公営 排水:浄化槽(集合) トイレ:水洗 | ||
交通機関 | バス / 桑折本町 まで徒歩 5 分 | ||
学区 | 醸芳小学校 / 醸芳中学校 | ||
取引態様 | 仲介 | ||
整理番号 | 01-007-001 | ||
備考 |
※仲介手数料は法定手数料となります。詳しい内容はお問い合わせ下さい。

他の写真